一、大兴首邑溪谷怎么样
性价比不错,适合年轻朋友和第一次买房的人,买一层送一层,实际得房后相当于每平米才一万三左右,现在大兴的均价基本在一万九。

二、首邑溪谷真实现状
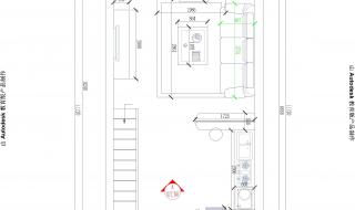
北京大兴首邑溪谷得立方空间是高层户型,从38到68平米的都有,层高4.8米,别看听起来小,实际很划算,上下两层,开发商给隔好的,都能做成两居室使用,而且价格上优势很大,总价120万起,这么算下来首付也就40万左右,比较划算。

本文来自投稿,不代表天德百科网立场,如若转载,请注明出处:http://webdev.hbjsyb.cn/bmln/c25b9cb4e46c93100.html
支付宝扫一扫

评论列表
大兴首邑溪谷怎么样 首邑溪谷户型图写的如何?
一、大兴首邑溪谷怎么样性价比不错,适合年轻朋友和第一次买房的人,买一层送一层,实际得房后相当于每平米才一万三左右,现在大兴的均价基本在一万九。 二、首邑溪谷真实现状北京大兴首邑溪谷得立方空间是高层户型,从38到68平米的都有,层高4.8米
推荐这篇文章:守卫剑阁13的孟获的攻略(难度2) 守卫剑阁1.29攻略
推荐这篇文章:2018别克英朗gt10t配置参数 英朗gt价格
推荐这篇文章:年夜饭菜单推荐家庭版 传统年夜饭12道凉菜